Přejít na obsahovou část stránky

PŘED

P1020387

PO

Kaldewei vana Advantage Saniform plus 160x75x41 cm. Rekonstrukce koupelny, kuchyně a interiéru bytu Svitavy, Hradec Králové | Pemtrade.cz

1.

Kuchyně
1
2
3
4
5
6

Rekonstrukce kuchyně

OBÝVACÍ POKOJ S jednoduchým KUCHYŇSKÝM KOUTEM

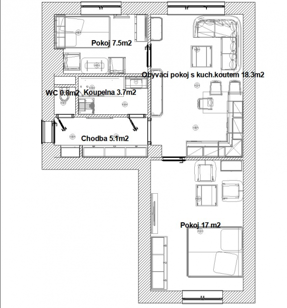
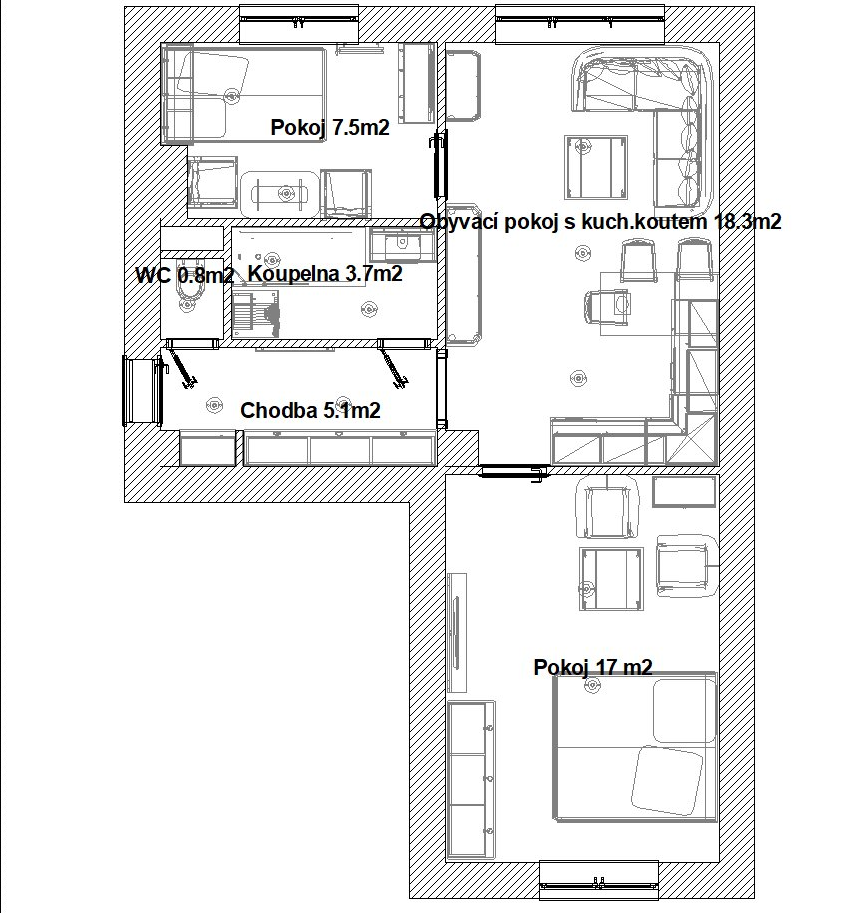
Obývací pokoj propojený s kuchyňským koutem na ploše 18,3 m² vznikl přesunutím kuchyně z původní samostatné místnosti. Nově byla využita stěna ložnice pro kuchyňskou linku ve dvou barevných tónech s přímým vstupem z chodby. Pro tuto změnu jsme museli využít WILO přečerpávací stanici  HIDRAINLIFT 3-24  na odpadní vodu. Kuchyně je doplněna o ostrůvek sloužící jako jídelní stůl, což při omezené velikosti prostoru přináší šikovné řešení. Vinylová podlaha se zde sjednocuje s celým bytem a zajišťuje vizuální propojení.

2.

Koupelna

Rekonstrukce koupelny

Koupelna, která nezapomněla na styl ani techniku

Hlavní hvězdou celé rekonstrukce interiéru bytu je nově vybudovaná koupelna. Navzdory menší ploše 3,7 m² se do ní vešla vana Kaldewei Advantage Saniform plus, umyvadlová skříňka INTEDOOR ARTE 85 se dvěma zásuvkami a LED zrcadlo LI4 ZS 80/70. Z dekorativního hlediska dominuje obklad Los Kachlos Yedra 30x30 s výrazným patchworkovým vzorem, který se opakuje za vanou i v samostatné toaletě. Zbylé plochy doplňuje dlažba a obklady Los Kachlos Cazorla Natural.

Do koupelny byl instalován ohřívač vody ARISTON VELIS EVO 100 a nad vanu sprchová tyč Ravak Chrome 974.00 spolu s vanovou baterií Ravak Rosa RS 022 a skleněnou zástěnou Gelco ONE.

1
2
3
4
5
6

3.

WC
1
2
3

Rekonstrukce WC

WC

Toaleta zůstává samostatná a je vybavena závěsným WC se systémem Geberit Duofix a ovládacím tlačítkem Sigma01. Technické prvky jsou elegantně skryty za truhlářským boxem s úložným prostorem a přístupem do stupaček.

4.

Ložnice 1


Ložnice s vestavnou skříní

Pokoj o velikosti 7,5 m² slouží jako ložnice s vestavěnou horní skříňkou v dekoru běleného dubu. Stěny byly vymalovány na svěže zeleno. Do prostoru byl integrován nástěnný trezor a LED podsvícení pod horní skříňkou dodává místnosti lehkost i funkčnost.

1
2
3
4
5
6

5.

Ložnice 2
1
2

 

velká ložnice

Druhý největší pokoj v bytě (17 m²) je pojat jako hlavní ložnice, která získala jednoduchý základ a hodně prostoru pro relax, práci i spánek. Ořechový dekor interiéru se zde opakuje na dveřích i podlaze, a celý byt tak působí vyváženě.

6.

Chodba

Chodba s vestavným věšákem a skříňkami

První dojem z bytu zajišťuje světle žlutá vstupní chodba, která byla osazena vestavěnou stěnou s lavicí, věšáky a uzavřeným horním prostorem. Ořechový dekor lamina navazuje na odstín dveří a dřevodekor vinylové podlahy. Chodba plynule navazuje na hlavní obytnou část a zachovává dostatečné místo pro vstup do koupelny i obývacího pokoje s kuchyňským koutem.

1
2
3

Inspirativní rekonstrukce interiérů bytů ve Svitavách, Hradci Králové a okolí

Chcete si splnit sen o dokonalém bydlení, které je nejen funkční, ale i esteticky výjimečné? Naše rekonstrukce interiérů bytů, koupelen a kuchyní proměňují běžné prostory v nadčasové, útulné domovy, kde každý detail slouží pohodlí a stylu. Na základě vašich přání a potřeb tvoříme prostory, které vám dodají energii a odrážejí váš jedinečný vkus.

Rekonstrukce interiérů bytů, které inspirují a vydrží
Specializujeme se na kompletní přeměny prostor ve Svitavách, Hradci Králové a přilehlých lokalitách. Naši klienti oceňují nejen náš profesionální přístup a pečlivou práci, ale také kvalitní materiály a moderní metody, které používáme pro dlouhou životnost a snadnou údržbu interiérů.

Kuchyně, koupelny i kompletní rekonstrukce interiérů bytů s důrazem na kvalitu
Každá rekonstrukce interiéru bytu nebo jeho části je pro nás příležitostí vytvořit něco skutečně výjimečného. S námi získáte interiér, který odráží vaši osobnost a přináší radost z každodenního života. Realizujeme rekonstrukce, které jsou vizuálně i prakticky harmonické, ať už jde o kompletní rekonstrukci bytu nebo modernizaci koupelny či kuchyně.

Kontaktujte nás pro inspiraci nebo konzultaci k vaší rekonstrukci ve Svitavách, Hradci Králové a okolí, a společně vytvoříme prostor, který bude odpovídat vašim snům i vysokým nárokům na styl a pohodlí.

Tento web využívá cookies

Pro chod webu jsou nezbytně aktivovány esenciální soubory cookies. Pro plnohodnotné poskytování služeb, personalizaci reklam a analýzu návštěvnosti jsou však nutné povolit i volitelné cookies. Kliknutím na následující tlačítko, je zapnete. Zobrazit podrobnosti

Nastavení cookies

Vaše soukromí je důležité. Můžete si vybrat z nastavení cookies níže. Zobrazit podrobnosti