Přejít na obsahovou část stránky

PŘED

20250228_173634

PO

Koupelna s umyvadlovou skříňkou JIKA CUBE 800 mm v antracit matu a LED zrcadlem INTEDOOR LINE. Realizace koupelny a interiéru Hradec Králové, Svitavy | Pemtrade.cz

1.

Kuchyně
1
2
3
4

Rekonstrukce kuchyně

Čistá bílá linka s tmavou pracovní deskou

Rekonstrukce kuchyně je postavená na kontrastu bílé linky a tmavé pracovní desky, která se vizuálně propisuje i do koupelny. Horní skříňky až ke stropu maximalizují úložný prostor a eliminují prachové mezery. Vestavné spotřebiče a černé detaily – úchytky, baterie i dřez – vytvářejí jednotný výraz bez zbytečných dekorací.

Praktickým prvkem je rozšířená pracovní plocha směrem do prostoru, která může sloužit jako rychlé místo pro snídani nebo práci. Limitem kuchyně je užší dispozice typická pro panelové byty, což omezuje pohyb více osob najednou. Vinylová podlaha v dekoru borovice přináší teplejší dojem a zároveň snadnou údržbu.

2.

Koupelna

Realizace koupelny

Sprchový kout se strukturou dřeva a kontrastem antracitu

Rekonstrukce koupelny staví na kombinaci obkladů LOS KACHLOS Halley Taupe 60x60 a tmavého dekoru Halley Argent 30x60 v imitaci kamene, který vytváří pevný vizuální rámec celého prostoru. Sprchový kout je obložen výrazným dekorem Tapiso Natural 33,3 × 90, jehož horizontální struktura připomíná dřevo a opticky rozšiřuje prostor. Posuvné sprchové dveře GELCO DRAGON GD4614 spolu s vaničkou z litého mramoru SanSwiss LIVADA přinášejí čisté řešení bez rušivých prvků. Praktickým detailem je nikoli jen samotný velký prostor sprchy (140x80), ale i LED pásek nad samotnou sprchou.

1
2
3
4
5
6
7
Dominantou umyvadlové části je skříňka JIKA CUBE 800 mm v antracit matu, která nabízí dostatek úložného prostoru, což je u panelových koupelen zásadní. Zrcadlo INTEDOOR LINE s integrovaným osvětlením eliminuje potřebu dalších svítidel a udržuje čistou linii stěny. Menším limitem prostoru je absence větší odkládací plochy kolem umyvadla, což je typické pro panelové dispozice, ale kompenzuje to právě kapacitní zásuvkový systém.

3.

WC
1
2

Rekonstrukce WC

Maximum úložného prostoru na minimální ploše

Realizace koupelny a WC pracuje s každým centimetrem. Nad toaletou vznikla na míru řešená skříňka, která elegantně zakrývá instalace a zároveň přidává úložný prostor. Kombinace světlejšího obkladu Halley Taupe 30 × 60 s tmavším Argent  za WC vytváří hloubku i v takto malém prostoru.

Nevýhodou zůstává omezená šířka místnosti, ale díky vertikálnímu řešení úložných prostor působí WC čistě. LED panel zde zajišťuje rovnoměrné osvětlení.

4.

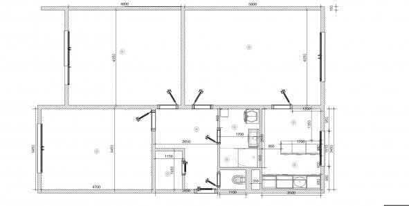
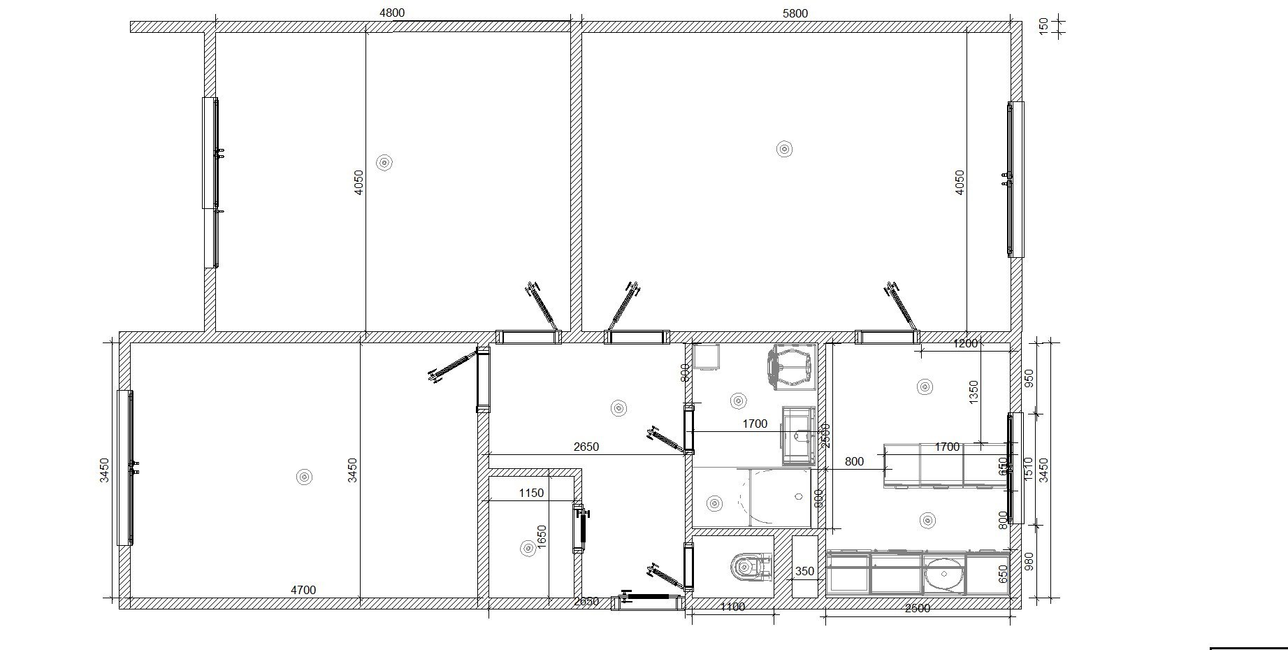
Grafický návrh

Svitavy, Hradec Králové

Grafický návrh koupelny

Grafický návrh koupelny je prvním krokem, který propojuje představy klienta s technickými možnostmi prostoru. Umožňuje přenést nápady do vizuální podoby, ověřit proporce, kombinace materiálů i funkční vazby mezi jednotlivými prvky. Je to fáze, kdy se hledá rovnováha mezi estetikou, komfortem a každodenním užíváním. Díky detailnímu zpracování návrhu je možné včas odhalit slabá místa, upravit dispozice nebo doplnit praktické detaily, které by v pozdější fázi znamenaly kompromisy. Výsledkem je promyšlený interiér, který působí přirozeně a funguje v každém detailu.

1
2
3
4
5
6

realizace koupelny i celých interiérů ve Svitavách, Hradci Králové a okolí

Hledáte konkrétní výsledek a kvalitu? Naše realizace interiérů, koupelen a kuchyní ukazují, jak lze proměnit běžné dispozice v promyšlené a vizuálně výrazné prostory. Každá rekonstrukce vychází z reálných potřeb klienta – od úložných řešení až po volbu materiálů, které obstojí v každodenním provozu.


Realizace interiérů, které dávají smysl i po letech

Zaměřujeme se na realizace ve Svitavách, Hradci Králové a okolí, kde pracujeme s typickými dispozicemi bytů i domů. Důraz klademe na přesné provedení, návaznost jednotlivých prvků a výběr materiálů, které nejsou jen vizuální, ale i odolné. Výsledkem jsou interiéry, které fungují v praxi – nejen na první pohled, ale i při každodenním používání.


Realizace koupelen, kuchyní i celých bytů

Každý projekt má jasný cíl – vytvořit prostor, který odpovídá konkrétnímu životnímu stylu. Nejde jen o vzhled, ale o souhru dispozice, světla a detailu.

Vždy hledáme řešení, které obstojí dlouhodobě a nebude vyžadovat kompromisy.


Domluvte si konzultaci

Pokud plánujete úpravu interiéru, navrhneme vám řešení na základě zkušeností z realizací. Výsledkem bude prostor, který odpovídá nejen představě, ale i každodenním nárokům na bydlení.

Tento web využívá cookies

Pro chod webu jsou nezbytně aktivovány esenciální soubory cookies. Pro plnohodnotné poskytování služeb, personalizaci reklam a analýzu návštěvnosti jsou však nutné povolit i volitelné cookies. Kliknutím na následující tlačítko, je zapnete. Zobrazit podrobnosti

Nastavení cookies

Vaše soukromí je důležité. Můžete si vybrat z nastavení cookies níže. Zobrazit podrobnosti